- BACK
- PROJECT T
Project T
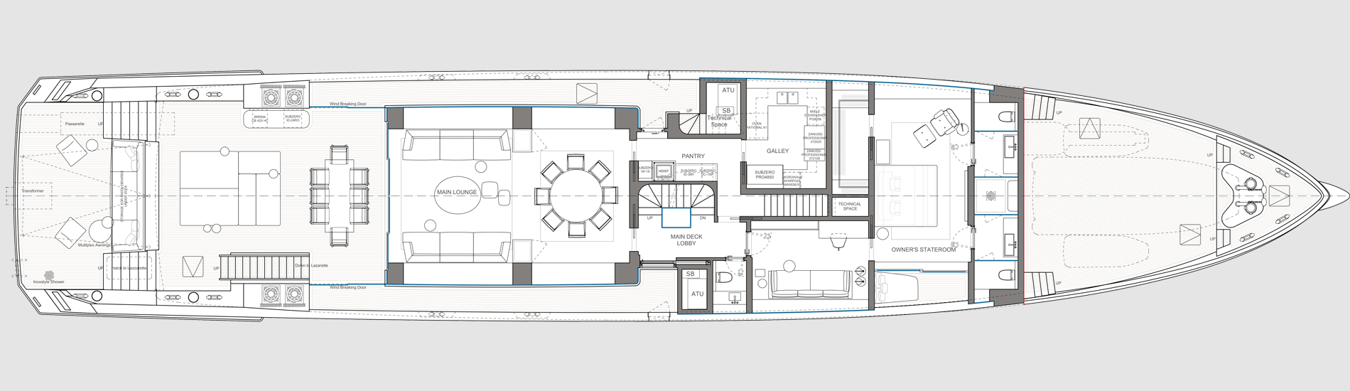
Project T, a 45 metre explorer yacht, boasts a sleek exterior designed by Giorgio M. Cassetta, characterized by rigorous lines. Its elegant sheer line seamlessly connects an almost vertical bow to a welcoming transom, featuring an expansive beach area. The Main and Upper deck are adorned with generous windows, fostering a strong connection with the natural surroundings. Considerable emphasis has been places on open-air living, evident in the spacious al fresco lounging and dining areas, as well as the broad side passages.
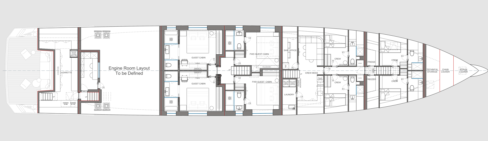
Accommodating up to ten guests, Project T offers four spacious suites on the Lower deck. The Owners have reserved the forward section of the Mai deck for themselves, where they can enjoy a full-beam apartment complete with separate his and hers bathrooms, dressing room and an adjoining lounging area. This private retreat ensures their relaxation in complete privacy.
Specifications
Length overall
45,71 m
150 ft
Waterline length
42,98 m
141 ft
Max beam
8,60 m
28.2 ft
Depth, amidship
4,15 m
13.6 ft
Draught, full load under the keel
2,45 t
8.00 t
Displacement, full load
454 t
500 US tons
Classification
C ✠ HULL • MACH Y
Diesel oil
52˙000 lt
14˙000 gal
Fresh water
11˙000 lt
2˙800 gal
Black water
2˙500 lt
660 gal
Grey water
10˙000 lt
2˙640 gal
Clean oil / Dirty oil
1˙200 / 1˙200 lt
317 / 317 gal
Bilge
1˙600 lt
423 gal
Engines
2xMAN V12 2x1066 kW @2100 rpm
Gearbox
2x REINTJES WAF 542 L
Generator
2x118 kW
Bow thruster
110 kW Electrical
Stabilizer fins
4x Electrical, Zero Speed
Maximum speed
15.5 Knots
Range
5˙500 nm @ 10 Knots
Passengers
10 (+2 Pullman Bed) / 5 Cabins
Crew
9 / 5 Cabins
Discover the Line
Info
We have combined the best designers, captains and skilled workers:
experiences and visions of the most have merged into a unique project. Our class of yachts is selected by the sea.
FOR A BEST EXPERIENCE
PLEASE TURN YOUR DEVICE







