- BACK
- BABBO
2024
An imposing, bold 43-metre explorer yacht, EXP 43, designed by Francesco Paszkowski, strikes a distinctive pose.
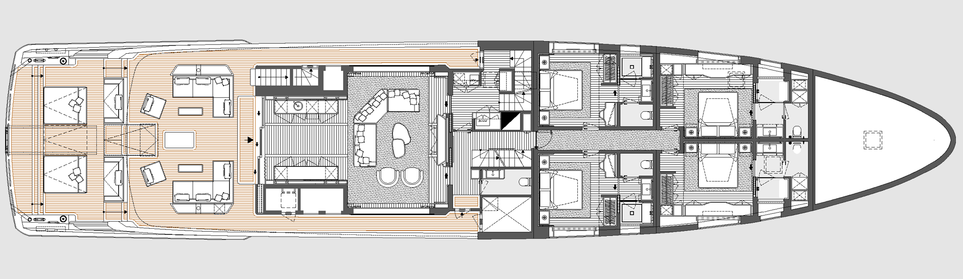
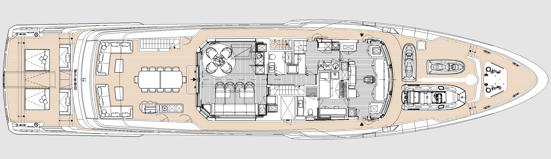
Among EXP 43’s remarkable features, deserve to be mentioned an extremely large cockpit and the large glazed surfaces on both Main and Upper Deck salon that best show off the indoor/outdoor ethos of this project. The Upper salon serves as a bright, airy veranda enveloped in glass. This ensures that no matter the season, the Owner and his guests can revel in a direct contact and uninterrupted view of the sea.
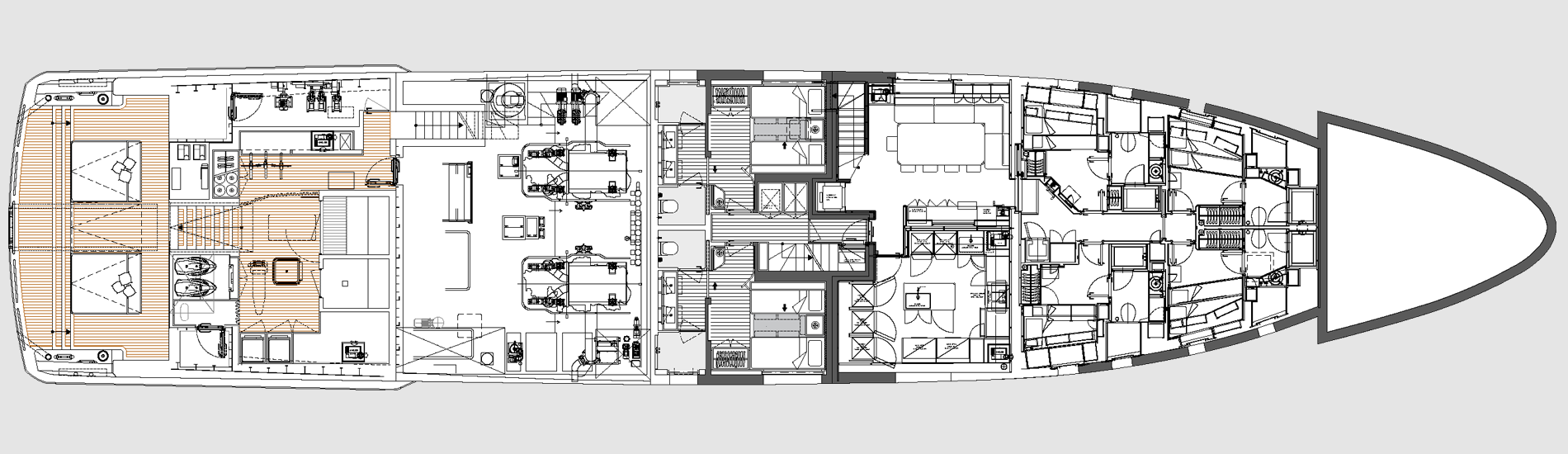
Guests are accommodated in four equally seized suites on the forward section of the Main deck and two twin cabins on the Lower deck. The Lower deck also houses generously sized galley, crew mess, and laundry facilities. Crew accommodations consists of four cabins on the forward section of the Lower deck, while the Captain enjoys a dedicated suite adjacent the wheelhouse. Tenders and toys are conveniently stored in a compartment on the forward section of the Upper deck.
Specifications
Length overall
42,6 m
139.7 ft
Waterline length
40,0 m
131.2 ft
Max beam
8,60 m
28.2 ft
Depth, amidship
4,70 m
15.4 ft
Draught, full load under the keel
2,62 t
8.60 t
Displacement, full load
440 t
Classification
C ✠ HULL • MACH Ych Unrestricted Navigation in compliance with REG CODE
Diesel oil
60˙000 lt
15˙850 gal
Fresh water
10˙000 lt
2˙642 gal
Black water
2˙300 lt
607 gal
Grey water
3˙000 lt
792 gal
Clean oil / Dirty oil
500 / 500 lt
132 / 132gal
Bilge
500 lt
132 gal
Engines
2xCATERPILLAR C32 ACERT 2x746kW @1600-1800 rpm - with SCR
Gearbox
2 x REINTJES gear ratio 3,955:1
Generator
2x80 kW
Bow thruster
75 kW Electrical
Stabilizer fins
2 pairs, Electrical, Zero Speed
Maximum speed
14 Knots
Range
5˙000 nm @ 10 Knots
Passengers
12 (+2 Pullman Bed) / 6 Cabine
Crew
9 / 5 Cabine
Discover the Line
Info
We have combined the best designers, captains and skilled workers:
experiences and visions of the most have merged into a unique project. Our class of yachts is selected by the sea.
FOR A BEST EXPERIENCE
PLEASE TURN YOUR DEVICE







